店舗・工場・事務所 新築・増築
建築の総合プロデュース
工場、倉庫、事務所、店舗の設計/プランニングから施工までお任せください。
-
Step 1プランニング
イメージや要望のヒアリング、企画立案、開業支援、資金計画、パース提出などを行います。
プラン例
店舗
- 飲食
-
ベトナムカフェ
ベトナム色の演出で店内の雰囲気作り
- 古民家
-
3丁目ガーデン
地域の活性化の為に古民家のリノベーションで空間創出
- エクステリア
-
晴れ晴れ建設
エクステリアの展示と一体になった商談スペース
事務所
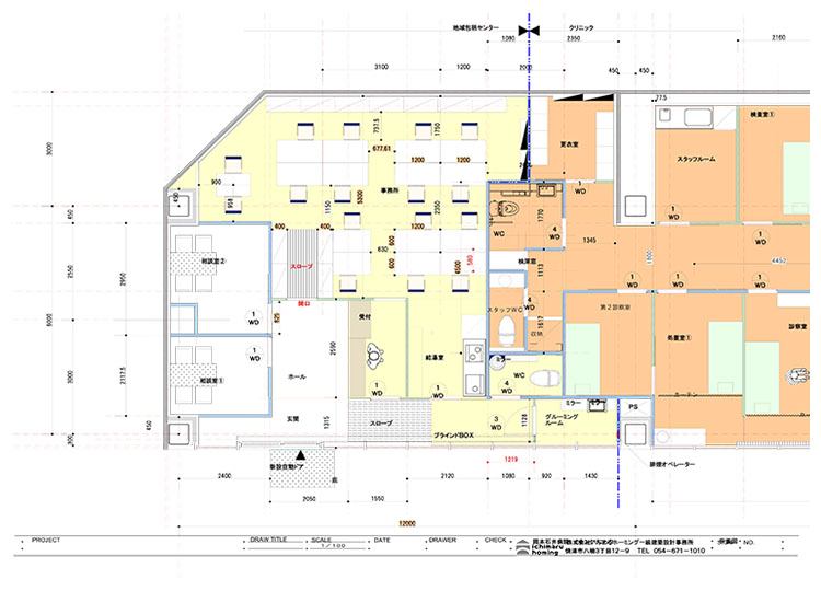
- 地域包括センター
-
多数の相談客と事務スペースの共存空間を無駄なく演出
住居系
- 社宅
-
大井川友成 社宅
男女の居室スペースを階で分離、内部で行き来出来ないプランを提案
-
Step 2物件調査
- Points 1不動産部門があり、物件情報が早い!法人向け物件多数あります。
- Points 2地域ネットワークを活用し、貴重な物件情報をより早く入手します。
- Points 3地域密着なので物件の周辺情報も収集。地代家賃も調査いたします。
物件探します
ご希望の用途に合わせた大きさ、金額、立地条件を地域ネットワークを駆使し、ご提案させていただきます。
ご相談の際は、希望のエリアをご指定いただくとよりスムーズに情報をご提供できます。 -
Step 3設計・施工
- Points 1用途に合わせた専門知識が豊富です。
- Points 2動線や機能性を考えた設計をします。
- Points 3自社で設計から施工まで一貫して対応します。
- Points 4材料や製品を十分に把握し機能性を向上させます。
- Points 5最適なタイミングでの資材搬入・設備設置・人員配置・施工計画で作業効率で上げることを常に心掛けています。
業種別の設計要素例
今までお客様から下記のようなご要望をいただき対応させていただきました。
- 食品工場
- 非接触等の衛生管理、防虫対策、HACCP対応など食の安全を重視
- 倉庫
- 最新の設備や省エネ、断熱などエネルギーマネジメントや非常用設備を考慮に入れ、生産性の効率化に反映
- 事務所
- 大規模な本社機能を持つオフィスから小規模のスモールオフィスまで業態、用途にあったプランを提供
- 店舗
- 企画から設計・施工・営業許可取得まであらゆる業態に対応
- 倉庫
- 最新の設備や省エネ、断熱などエネルギーマネジメントや非常用設備を考慮に入れ、生産性の効率化に反映
- 事務所
- 大規模な本社機能を持つオフィスから小規模のスモールオフィスまで業態、用途にあったプランを提供
- 店舗
- 企画から設計・施工・営業許可取得まであらゆる業態に対応
-
Step 4アフターメンテナンス
竣工後も責任をもってサポート致します。
工事完成後からが本当のお付き合い。定期的なご訪問も行っております。不満な点、良くしたい点をお聞かせ下さい。トラブルを未然に防ぎましょう。
サービス内容
- 外壁の塗替え、補修
- 事務所を改装
- 工場の動線の変更
- 設備のリニューアル
- 建物の解体
- 安全施設を更新
- 雨漏り対策
- 外構、駐車場工事・水廻りの整備
アフターケアもお任せください
ご提案例
- 工場
- HACCP対応やSDG’sの提案
- 倉庫
- 省エネや最新設備、低炭素建築物の提案
- 事務所
- 機能性やレイアウト変更、BCP対策の提案
- 店舗
- 省エネ、SDG’s、集客、動線見直しなどの提案
- 太陽光
- 自家消費による電気購入費の削減、カーボンニュートラルに向けての補助金や規制緩和の情報提供
実例 / 実績
工場
- 株式会社 上田紙工機様 工場新築工事
紙器機械製造工場を新築しました。
昨年創立70周年を迎えた静岡市にある、株式会社上田紙工機様の新工場です。- 建物データ
- 鉄骨平屋建 延べ 398.75m²
- 2.8t クレーン2基装備
工場全景
建物は準耐火構造
工場内
クレーン揚程7m 天井高9m
工場内
クレーン揚程7m 天井高9m
2.8t クレーンを2基装備
建て方風景
倉庫
- ニシムラネットワーク静岡様
-


事務所
- 古民家リノベーション 3丁目ガーデン・ギャラリー&ハートリンクカフェ
焼津市、駅前商店街の裏側、車も入れない路地の一角にポツンと古民家。
市民の憩いの場所にと、商店街の有志が古民家のリノベーションを計画。
ギャラリーとカフェに生まれ変わりました。
計画前の古民家 ビフォー
アフター
庭も整備し直し広い芝生広場に。
ガーデンカフェに使えるようになりました。
建物は耐震補強後、黒塀に変身。
古民家の内部を活かし外壁を黒塀に。
路地境は枕木を使いました。
建物内部 ビフォー
アフター
床を取り除きコンクリートで補強
壁・天井はなるべく既存の雰囲気を残し、壁は耐震壁を格子でデザインしました。
照明も碍子(ガイシ)で配線・・・
雰囲気を残しました。
カフェ内部
天井・壁はそのまま残し床を土足用に改修。
庭の見える位置に杉のカウンターを設置。
庭を見ながらのカフェ席です。
ギャラリーは床を落としてその分天井が高くなりました。
壁・天井はそのまま使用。
耐震壁だけ大壁にリニューアル。
建具は古い格子戸を探して備え付けました。
カフェの客席
こちらの客席は、お母さんと子供仕様で、床で遊べるように座敷席仕様にしました。
ガーデン風景
子供たちが自由に遊べる芝生広場です。
隣地の境も黒板塀で仕切り、周囲の施設に配慮しています。
もちろん、ペット可!
ガーデン風景
子供たちが自由に遊べる芝生広場です。
隣地の境も黒板塀で仕切り、周囲の施設に配慮しています。
もちろん、ペット可!
路地入口の案内サイン。
- 前川製作所様

太陽光
- 新築

- 野立

- 既築

- 太陽光発電の実績はこちら

















引き渡し後も良好な状態で長い間ご使用いただけるように的確なアドバイスをさせていただきます。
豊富な知識と経験をもとに様々な施設への対応をしてきました。
安心・安全・スピードをモットーに親切丁寧に対応させて頂きます。
工事後のアフターケアもお任せください。